Kellenhusen:
Ferienwohnung 150 m vom Strand, Terrasse, EBK, Stellplatz, Neubaustandard
Objekt-Nr.: 156557995

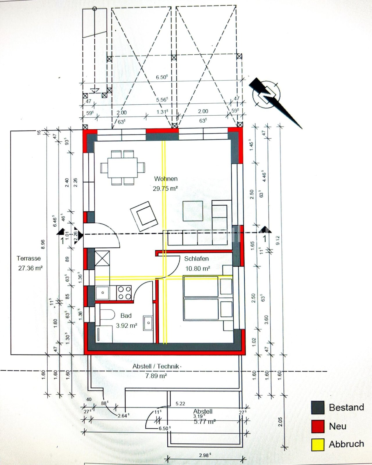
Grundriss Stand Februar 2026

Strand

Kellenhusen-Strand-Seebruecke

Seebruecke-Nacht-2-2500PX

Winter-Seebruecke





Preis:
348.900 €
Wohnfläche ca.:
58,15 m²
Zimmeranzahl:
2
Nur 2 Minuten und etwa 150m zum Deich und dem dahinter liegendem, feinsandigen Strand von Kellenhusen liegt dieses Gebäude.
Es entstehen 2 Neubau-Ferienwohnungen durch Umbau auf einem voll erschlossenen Gemeinschaftsgrundstück. Eine im Erdgeschoß mit Terrasse und eine im Dachgeschoss mit Balkon.
Die hier angebotene Wohnung im Erdgeschoss hat eine Gesamtfläche von ca. 58,15 qm inkl. anteilig berechneter Terrassenfläche.
Sie besteht aus einem knapp 30 qm großen Wohnzimmer mit 2 großen, bodentiefen Fensterscheiben. Einem Eingangsbereich, der Zugleich der Ausgang zur Terrasse ist.
Eine offene Einbauküche mit Fenster kann hier individuell geplant werden. Der Bauträger stellt dafür ein Budget von EUR 5.000,- zur Verfügung, welcher im Kaufpreis bereits inbegriffen ist.
Ein separates Schlafzimmer ist ebenso vorhanden, wie auch ein Badezimmer mit Dusche, WC, Waschtisch und Fenster. Alle Objekte werden aus hochwertigen Marken eingebaut.…
Die Bodenbeläge können nach Bemusterung aus Fliesen, Fliesenoptik, Parkett oder Laminat ausgewählt werden.
Bestimmen Sie auch Ihre Wandfarben selbst. Vorgesehen ist weiss und einzelne Wände mit farblichen Akzenten.
Die Beheizung und Warmwasseraufbereitung wird über eine neue, moderne, energiesparende Gastherme erfolgen.
Vor dem Haus wird der Wohnung ein eigener PKW-Stellplatz zugeordnet.
Diese Wohnung eignet sich hervorragend als Ferienwohnung, deren Nutzung bereits durch das Bauamt genehmigt ist. Aber auch ein Erst- und Zweitwohnsitz ist denkbar, da wir uns hier in einem Wohngebiet befinden.
Der gesetzlich vorgeschriebene Energieausweis lt. GEG wird nach Fertigstellung des Gebäudes und der Wohnungen erstellt und entsprechend vorgelegt.
Es gibt keine WEG und keine Verpflichtung einen Hausverwalter zu bestellen, beide Wohnungen können in Eigenregie selbst verwaltet werden.
Wohnungstyp: Etagenwohnung
Etagenanzahl: 1
Provisionspflichtig: ja
Küche: Einbauküche
Bad: Dusche
Anzahl Schlafzimmer: 1
Anzahl Badezimmer: 1
Terrasse: 1
Nichtraucher: ja
Keller: nein
Anzahl der Parkflächen: 1 x Außenstellplatz
Möbliert: nein
Letzte Modernisierung/ Sanierung: 2026
Qualität der Ausstattung: gehoben
Baujahr: 2026
Bezugsfrei ab: Sommer
Bodenbelag: Fliesen
Zustand: Erstbezug
Energieklasse: A+
Heizung: Zentralheizung
Befeuerungsart: Gas
Energieausweistyp: Energieausweis liegt zur Besichtigung vor
Die Käufercourtage in Höhe von 3,57% inkl. Umsatzsteuer wird fällig mit notarieller Beurkundung der Immobilie.
Das könnte Ihnen auch gefallen

Stephan Meyer MM Immobilien
Herr Stephan Meyer
Am Ring36
23746 Kellenhusen
Telefon: +49 04364 7134976
Mobil: +49 0179 8214142




































